Ufficio in affitto

San Martino Buon Albergo, Via nazionale
€ 1.700 / mese
6 locali 6 locali
100 Mq 100 Mq
1 bagno 1 bagno

Ufficio in affitto

San Martino Buon Albergo, Via nazionale

Descrizione annuncio

UFFICIO VETRINATO CON PARCHEGGIO, SU STRADA PRINCIPALE A SAN MARTINO BUON ALBERGO - IN LOCAZIONE

Descrizione: Precedentemente adibito a studio dentistico, l'immobile è ubicato in posizione strategica sulla strada principale, ad alto passaggio veicolare, garantendo la massima visibilità. La soluzione è già predisposta ad ospitare attività mediche o sanitarie, ma si presta anche per studi tecnici e professionali

CARATTERISTICHE PRINCIPALI:

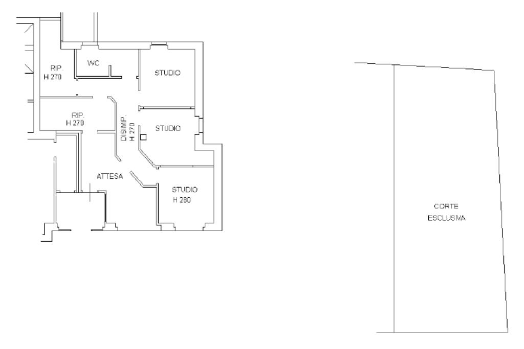
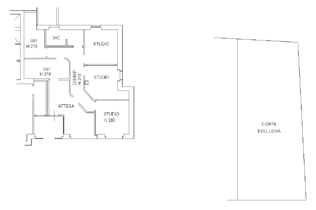
- Superficie: 100 mq

- Predisposizione interna: Suddiviso in locali distinti, adibiti a zona accoglienza, ambulatori, sala di sterilizzazione e disimpegno, più servizio igienico finestrato a norma disabili

- Parcheggio: Presenti 5 posti auto esterni di pertinenza

Condizioni contrattuali:

- Immobile soggetto ad IVA

UBICAZIONE E CONTESTO:

San Martino Buon Albergo è un comune di Verona noto per la sua vivace attività commerciale. Situato a soli 10 km dal centro storico di Verona, offre una posizione strategica e ben collegata. La presenza di numerose attività circostanti rende la zona animata e frequentata

Mostra tutto

Nelle vicinanze

Trasporto pubblico Trasporto pubblico
San Martino Buon Albergo
San Martino Buon Albergo
700 m
Paglia di S. Martino B.A.
Paglia di S. Martino B.A.
140 m
Centro di S. Martino B.A.
Centro di S. Martino B.A.
450 m
Ricariche auto elettriche Ricariche auto elettriche
Best Western Hotel Turismo
810 m
EVAD San Martino Buon Albergo
1,8 Km
Musella Winery & Relais
2,3 Km
Scuole Scuole
Scuole
240 m
Scuola materna
260 m
Scuola Secondaria di I grado
510 m
Scuola elementare Salvo D'Acquisto
560 m
Scuola primaria "Salvatore Todaro"
1,5 Km
Farmacia Farmacia
Farmacia Pomari
30 m
Farmacia Nigri
460 m
Farmacia Vittoria
780 m
Farmacia Verona Est
1,2 Km
Iper Farma
1,3 Km
Supermercati Supermercati
MD
660 m
Mondo Convenienza
1,1 Km
Iper Verona
1,2 Km
Famila
1,3 Km
Interspar
1,5 Km
Negozi Negozi
Pane Bellesini
430 m
Calzature Casali
730 m
H M
1,1 Km
Zara
1,1 Km
Pellizzari
1,2 Km
Bar Bar
Bar
80 m
Al Cardinale
400 m
Caffè Peretti
430 m
Seven Cafè
650 m
37036
720 m
Ristoranti Ristoranti
Saporè
170 m
Pizzeria Lui & Lei
370 m
Gelateria
380 m
The Loft 37
500 m
Pizzeria al Maglio
920 m
Mostra tutto

Caratteristiche

Rif.:
61118882
Piano:
Terra di 2
Totale piani:
2
Posti auto:
5
Condizionamento:
Autonomo
Ascensore:
No
Mostra tutto
Prezzo Prezzo
€ 1.700 / mese
Spese annue Spese annue
€ 300

Classe Energetica

E
E
E
E
E
E
E
E
E
EP globale non rinnovabile:
150.38 kW h/m² anno
EP globale rinnovabile:
150.38 kW h/m² anno
EP invernale del fabbricato:
EP estiva del fabbricato:
Anno di costruzione:
1990
Riscaldamento:
Autonomo
Tipo impianto:
Ad aria
Tipo alimentazione:
Metano

Ti interessa visionare l'immobile?

Fissa un appuntamento  Fissa un appuntamento

Richiedi informazioni

* Questi campi sono obbligatori
Affiliato
Industriale Verona Est Sas
Via Sant'Antonio, 50 37036 San Martino Buon Albergo (VR)

Il nostro staff


  • Salvatore Cruceli
    Affiliato

  • Valerio Caruso
    Affiliato

  • Martina Forapan
    Coordinatrice

  • Simone Marchiori
    Collaboratore

  • Valerio Triggiani
    Affiliato
Via Sant'Antonio, 50 37036 San Martino Buon Albergo (VR)
Zona: VERONA EST-SAN MARTINO B.A.-LAVAGNO-COLOGNOLA AI COLLI-CALDIERO-ILLASI-ZEVIO-OPPEANO-PALU'-GREZZANA
Mostra su mappa
Orari: Lun - Ven: 09.00 - 12.30 / 15.00 - 19.30 Sab: 09.00 - 12.30
Affiliato
Industriale Verona Est Sas
Via Sant'Antonio, 50 37036 San Martino Buon Albergo (VR)

2025 Tecnocasa Franchising S.p.A. - P. IVA 08365160152 - Via Monte Bianco 60/A 20089 Rozzano (MI). Ogni agenzia ha un proprio titolare ed è autonoma. Privacy policy | Policy utilizzo | Cookie policy