Capannone in vendita

San Martino Buon Albergo, Via Pitagora - Sant'Antonio
€ 880.000
1 locale 1 locale
670 Mq 670 Mq

Capannone in vendita

San Martino Buon Albergo, Via Pitagora - Sant'Antonio

Descrizione annuncio

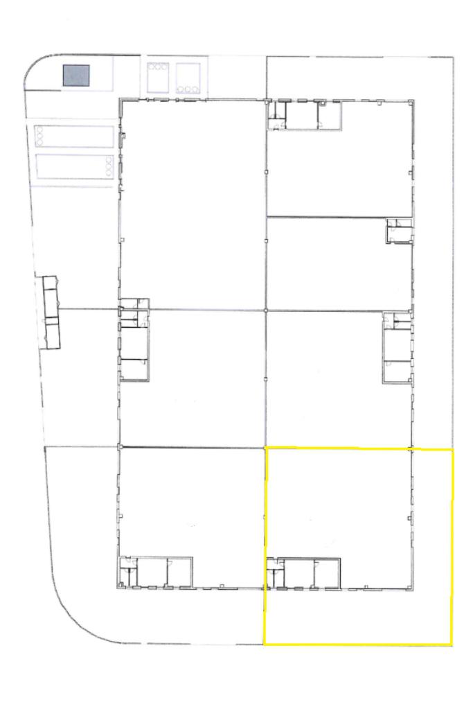
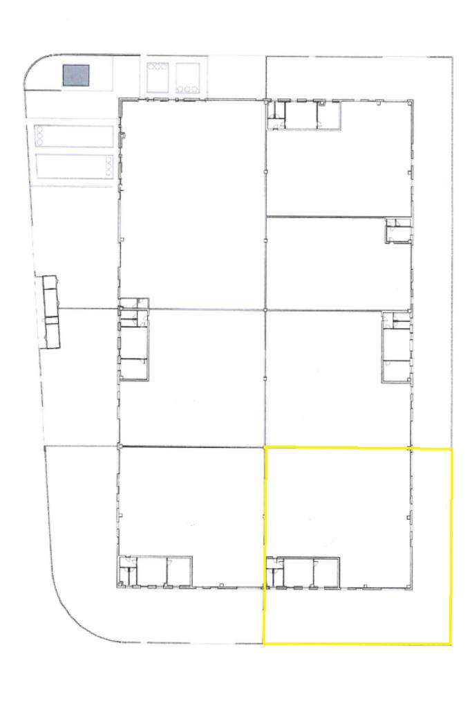
PORZIONE DI COMPLESSO DI NUOVA COSTRUZIONE CON PIAZZALE A SAN MARTINO - IN VENDITA

Descrizione: Attualmente in fase di edificazione, l'immobile è situato in posizione strategica, nelle immediate vicinanze della strada principale e dei raccordi autostradali, garantendo facilità di accesso per mezzi leggeri e pesanti.

CARATTERISTICHE PRINCIPALI:

- Superficie: 670 mq

- Predisposizione interna: Openspace, con altezza di circa 7 metri

- Piazzale: Presente spazio esterno frontale e laterale

Condizioni contrattuali:

- Stato attuale: In fase di costruzione

- Immobile soggetto ad IVA

UBICAZIONE E CONTESTO:

San Martino Buon Albergo è un comune di Verona, situato a soli 10 km dal centro storico di Verona, offre una posizione strategica e ben collegata grazie alla vicinanza alla tangenziale Est, all’autostrada A4 e alla linea ferroviaria.

Il Comune è inoltre noto per il suo importante polo commerciale e direzionale, che attrae un flusso costante di persone dai comuni limitrofi, contribuendo a un’economia locale vivace e in continua evoluzione.

Mostra tutto

Nelle vicinanze

Trasporto pubblico Trasporto pubblico
San Martino Buon Albergo
San Martino Buon Albergo
1,4 Km
AIA
AIA
330 m
S. Antonio di S. Martino B.A.
S. Antonio di S. Martino B.A.
860 m
Ricariche auto elettriche Ricariche auto elettriche
EVAD San Martino Buon Albergo
720 m
Musella Winery & Relais
1,7 Km
Best Western Hotel Turismo
2,8 Km
Scuole Scuole
Scuole
1,2 Km
Scuola Secondaria di I grado
1,5 Km
Istituto Comprensivo n. 21 "Madonna di Campagna"
1,5 Km
Scuola primaria "Salvatore Todaro"
1,8 Km
Scuola elementare Renato Simoni
1,9 Km
Farmacia Farmacia
Farmacia Verona Est
1,5 Km
Farmacia Nigri
1,6 Km
Farmacia Dottor Giarolo
1,8 Km
Farmacia Comunale Madonna di Campagna
1,8 Km
Farmacia Pomari
2,0 Km
Supermercati Supermercati
Lidl
1,0 Km
Supermercato Santi
1,3 Km
Famila
1,3 Km
Mondo Convenienza
2,0 Km
Iper Verona
2,1 Km
Negozi Negozi
La Contadina
1,1 Km
Fioraso Dino
1,2 Km
Pittarello
1,3 Km
Panificio Cristina
1,3 Km
Prix
1,4 Km
Bar Bar
Bar da Gino
860 m
Blu Bar
900 m
37036
1,3 Km
Seven Cafè
1,4 Km
Bar
1,4 Km
Ristoranti Ristoranti
Alla Scimmia
1,1 Km
La Sorgente
1,1 Km
Pizzeria d'asporto Dalmatino
1,2 Km
Ristoranti
1,2 Km
Pizzeria Il Thempio
1,4 Km
Mostra tutto

Caratteristiche

Rif.:
61155305
Piano:
Terra di 1
Totale piani:
1
Condizionamento:
Predisposizione impianto
Ascensore:
No
Riscaldamento:
Assente
Mostra tutto
Prezzo Prezzo
€ 880.000
Rata mutuo Rata mutuo
€ 4.160 / mese
Spese annue Spese annue
€ 0
Proponi il tuo prezzoProponi il tuo prezzo

Classe Energetica

A4
A4
A4
A4
A4
A4
A4
A4
A4
EP globale non rinnovabile:
150.38 kW h/m² anno
EP globale rinnovabile:
150.38 kW h/m² anno
EP invernale del fabbricato:
EP estiva del fabbricato:
Anno di costruzione:
2025
Riscaldamento:
Assente

Ti interessa visionare l'immobile?

Fissa un appuntamento  Fissa un appuntamento

Richiedi informazioni

Clicca su Leggi per aprire l'informativa
* Questi campi sono obbligatori

Calcola il tuo mutuo

Semplice e senza impegno
Anticipo

( % )
Mutuo

( % )

pochi semplici passi

inserisci i tuoi dati
Questionario completato
Grazie per aver richiesto un appuntamento senza impegno con un nostro Consulente del Credito e Assicurativo.

Hai inserito correttamente tutti i dati necessari e a breve riceverai una e-mail con un link da convalidare per inviare i tuoi dati.
Affiliato
Industriale Verona Est Sas
Via XX Settembre, 79 37036 San Martino Buon Albergo (VR)

Il nostro staff


  • Salvatore Cruceli
    Affiliato

  • Valerio Caruso
    Affiliato

  • Martina Forapan
    Coordinatrice

  • Simone Marchiori
    Collaboratore

  • Valerio Triggiani
    Affiliato
Via XX Settembre, 79 37036 San Martino Buon Albergo (VR)
Zona: VERONA EST-SAN MARTINO B.A.-LAVAGNO-COLOGNOLA AI COLLI-CALDIERO-ILLASI-ZEVIO-OPPEANO-PALU'-GREZZANA
Mostra su mappa
Orari: Lun - Ven: 09.00 - 12.30 / 15.00 - 19.30 Sab: 09.00 - 12.30
Affiliato
Industriale Verona Est Sas
Via XX Settembre, 79 37036 San Martino Buon Albergo (VR)

2026 Tecnocasa Franchising S.p.A. - P. IVA 08365160152 - Via Monte Bianco 60/A 20089 Rozzano (MI). Ogni agenzia ha un proprio titolare ed è autonoma. Privacy policy | Policy utilizzo | Cookie policy