Negozio in vendita

Castagnaro, Via Dante Alighieri
€ 170.000
3 locali 3 locali
260 Mq 260 Mq
1 bagno 1 bagno

Negozio in vendita

Castagnaro, Via Dante Alighieri

Descrizione annuncio

NEGOZIO FRONTE STRADA CON ANNESSA ATTIVITA', SU VIA DI PASSAGGIO A CASTAGNARO - IN VENDITA

Descrizione: Storicamente utilizzato come laboratorio di prodotti da forno e lievitati, la soluzione è situata sulla piazza principale del paese, comoda alle principali arterie stradali e ai principali servizi. Si presta per attività che necessitano di un punto vendita diretto al pubblico con spazi operativi separati sul retro.

CARATTERISTICHE PRINCIPALI:

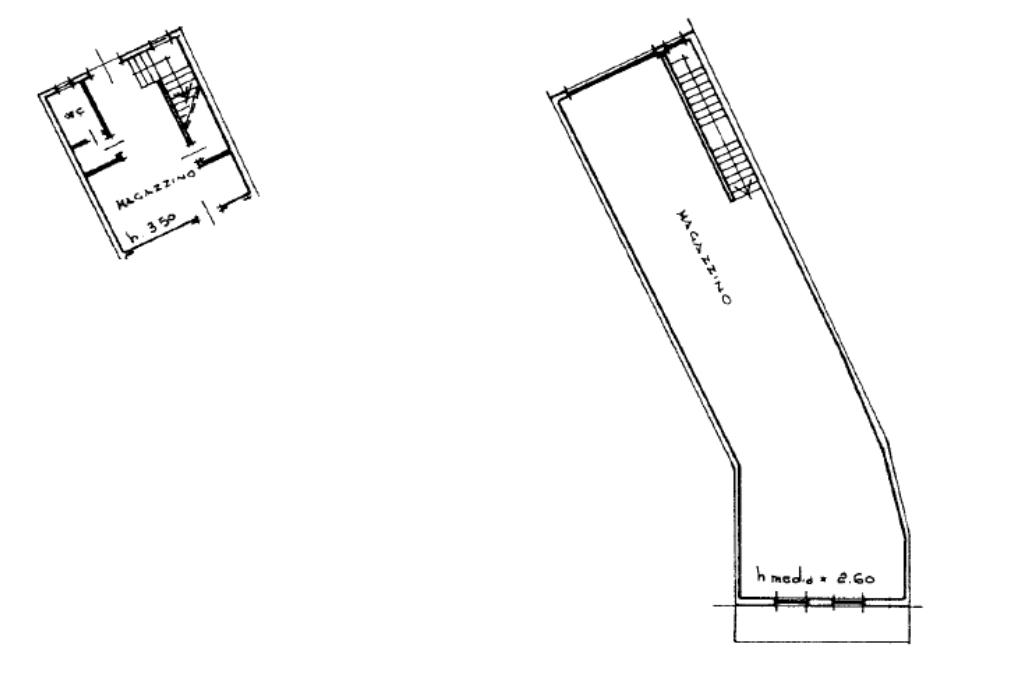
- Superficie: 260 mq totali

- Negozio: 90 mq vetrinati con annessa attività di rivendita generi alimentari

- Magazzino: 170 mq suddivisi al piano terra e primo

- Parcheggio: Presente pubblico antistante

Condizioni contrattuali:

- Immobile soggetto ad IVA

UBICAZIONE E CONTESTO:

Castagnaro dista circa 52 km da Verona ed è situato all’estremo sud della provincia, al confine con Rovigo. Il comune è ben collegato grazie alla stazione ferroviaria sulla linea Verona–Rovigo, all’uscita della SS 434 Transpolesana a circa 1 km e alla vicinanza all’Autostrada Piovene Rocchette, rendendo l’immobile una soluzione strategica e facilmente accessibile.

La zona, prevalentemente agricola, rappresenta un contesto ideale per attività produttive, artigianali e commerciali che necessitano di spazi ampi e logistici.

Mostra tutto

Nelle vicinanze

Trasporto pubblico Trasporto pubblico
Castagnaro
Castagnaro
550 m
Castagnaro Via Dante Alighieri
Castagnaro Via Dante Alighieri
80 m
Castagnaro Borgonovo
Castagnaro Borgonovo
450 m
Ricariche auto elettriche Ricariche auto elettriche
BeCharge Municipio di Castagnaro
90 m
Scuole Scuole
Scuola Primaria "Cesare Battisti"
110 m
Scuola Secondaria di Primo Grado "Ippolito Nievo"
300 m
Scuola Primaria Statale Padre Reginaldo Giuliani
2,3 Km
Farmacia Farmacia
Farmacia San Nicola
70 m
Erboristeria Farmacia Dottor de Tomi
2,5 Km
Farmacia all'Adige
2,7 Km
Supermercati Supermercati
Eurospin
220 m
Il Gusto
2,4 Km
Mostra tutto

Caratteristiche

Rif.:
61164175
Piano:
Terra di 2
Totale piani:
2
Condizionamento:
Autonomo
Ascensore:
No
Riscaldamento:
Autonomo
Mostra tutto
Prezzo Prezzo
€ 170.000
Rata mutuo Rata mutuo
€ 811 / mese
Spese annue Spese annue
€ 0
Proponi il tuo prezzoProponi il tuo prezzo

Altre caratteristiche

Descrizione dei locali
Bagno Cieco

Classe Energetica

E
E
E
E
E
E
E
E
E
EP globale non rinnovabile:
150.38 kW h/m² anno
EP globale rinnovabile:
150.38 kW h/m² anno
EP invernale del fabbricato:
EP estiva del fabbricato:
Anno di costruzione:
1990
Riscaldamento:
Autonomo
Tipo impianto:
Ad aria
Tipo alimentazione:
Metano

Ti interessa visionare l'immobile?

Fissa un appuntamento  Fissa un appuntamento

Richiedi informazioni

Clicca su Leggi per aprire l'informativa
* Questi campi sono obbligatori

Calcola il tuo mutuo

Semplice e senza impegno
Anticipo

( % )
Mutuo

( % )

pochi semplici passi

inserisci i tuoi dati
Questionario completato
Grazie per aver richiesto un appuntamento senza impegno con un nostro Consulente del Credito e Assicurativo.

Hai inserito correttamente tutti i dati necessari e a breve riceverai una e-mail con un link da convalidare per inviare i tuoi dati.
Affiliato
Industriale Verona Est Sas
Via XX Settembre, 79 37036 San Martino Buon Albergo (VR)

Il nostro staff


  • Salvatore Cruceli
    Affiliato

  • Valerio Caruso
    Affiliato

  • Martina Forapan
    Coordinatrice

  • Simone Marchiori
    Collaboratore

  • Valerio Triggiani
    Affiliato
Via XX Settembre, 79 37036 San Martino Buon Albergo (VR)
Zona: VERONA EST-SAN MARTINO B.A.-LAVAGNO-COLOGNOLA AI COLLI-CALDIERO-ILLASI-ZEVIO-OPPEANO-PALU'-GREZZANA
Mostra su mappa
Orari: Lun - Ven: 09.00 - 12.30 / 15.00 - 19.30 Sab: 09.00 - 12.30
Affiliato
Industriale Verona Est Sas
Via XX Settembre, 79 37036 San Martino Buon Albergo (VR)

2026 Tecnocasa Franchising S.p.A. - P. IVA 08365160152 - Via Monte Bianco 60/A 20089 Rozzano (MI). Ogni agenzia ha un proprio titolare ed è autonoma. Privacy policy | Policy utilizzo | Cookie policy