Capannone in vendita

Belfiore, Via moneta
€ 2.000.000
7 locali 7 locali
3000 Mq 3000 Mq
2 bagni 2 bagni

Capannone in vendita

Belfiore, Via moneta

Descrizione annuncio

CAPANNONE AGRO-INDUSTRIALE, CON AMPIO PIAZZALE PRIVATO E BAIE DI CARICO A BELFIORE - IN VENDITA

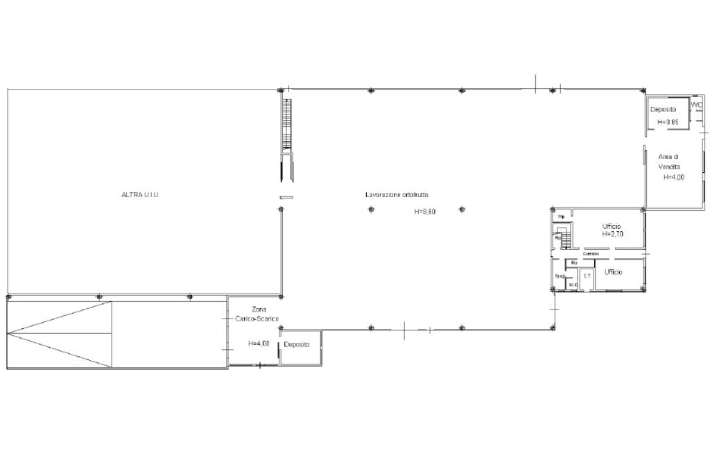
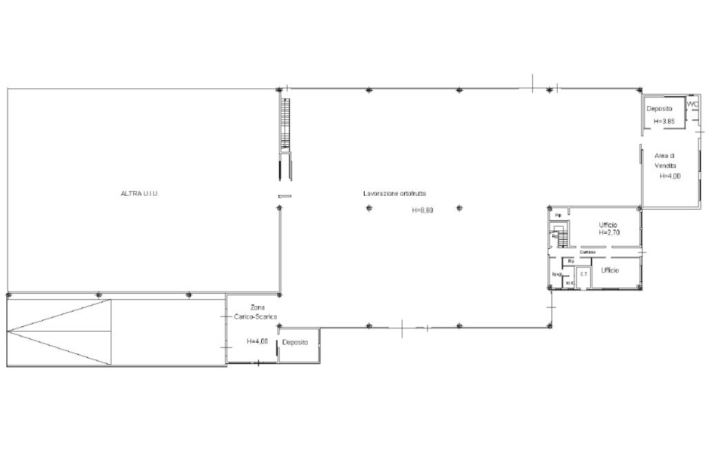
Descrizione: Precedentemente adibito a magazzino ortofrutticolo, l'immobile è ubicato su un ampio lotto nelle vicinanze delle principali arterie di comunicazione, in una zona agro-industriale. Ideale per attività di logistica e stoccaggio.

CARATTERISTICHE PRINCIPALI:

- Lotto: 10.000 mq totali

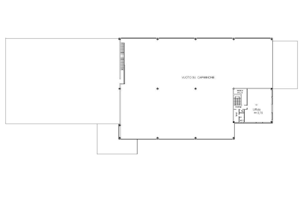
- Superficie coperta: 3.000 mq, comprensivi di capannone produttivo dotato di portoni carrai, area uffici e sala riunioni al primo piano

- Piazzale esterno: 7.000 mq, con ampi spazi di manovra fronte e retro e accessi carrai dedicati

- Dotazioni: 10 celle frigorifere operative, 2 baie di carico funzionali per carico/scarico merci

Condizioni contrattuali:

- Immobile soggetto ad IVA

UBICAZIONE E CONTESTO:

Belfiore è posizionato circa 20 chilometri ad est di Verona. Sorge sulla riva nord del fiume Adige. Ha un territorio totalmente pianeggiante tipico della Pianura Padana.

Pur essendo il paese caratterizzato da un'intensa attività agricola, a Belfiore sono presenti piccole e medie industrie e un numero non trascurabile di artigiani. La principale coltura è la mela.
Il territorio fa parte della zona di produzione del vino Arcole DOC.

Mostra tutto

Nelle vicinanze

Trasporto pubblico Trasporto pubblico
Trasporto pubblico
860 m
Scuole Scuole
Scuola elementare "Dante Alighieri"
910 m
Scuola materna
970 m
Scuola media "Antonio Pisano"
970 m
Scuole
990 m
Farmacia Farmacia
Farmacia
1,0 Km
Supermercati Supermercati
A&O
920 m
Bar Bar
Panificio Rossi
830 m
Bar Italia
850 m
Bar all'Angolo
860 m
NP Caffè
860 m
Bar Roma
860 m
Ristoranti Ristoranti
Pizzeria "Al gatto verde"
580 m
Trattoria dalla Renata
2,5 Km
Enoteca Ristorante Villa Gritti
2,8 Km
Mostra tutto

Caratteristiche

Rif.:
61120957
Piano:
Terra di 2
Totale piani:
2
Condizionamento:
Autonomo
Ascensore:
No
Riscaldamento:
Autonomo
Mostra tutto
Prezzo Prezzo
€ 2.000.000
Rata mutuo Rata mutuo
€ 9.455 / mese
Spese annue Spese annue
€ 0
Proponi il tuo prezzoProponi il tuo prezzo

Classe Energetica

E
E
E
E
E
E
E
E
E
EP globale non rinnovabile:
190.70 kW h/m² anno
EP globale rinnovabile:
190.70 kW h/m² anno
EP invernale del fabbricato:
EP estiva del fabbricato:
Anno di costruzione:
2000
Riscaldamento:
Autonomo
Tipo impianto:
Ad aria
Tipo alimentazione:
Metano

Ti interessa visionare l'immobile?

Fissa un appuntamento  Fissa un appuntamento

Richiedi informazioni

Clicca su Leggi per aprire l'informativa
* Questi campi sono obbligatori

Calcola il tuo mutuo

Semplice e senza impegno
Anticipo

( % )
Mutuo

( % )

pochi semplici passi

inserisci i tuoi dati
Questionario completato
Grazie per aver richiesto un appuntamento senza impegno con un nostro Consulente del Credito e Assicurativo.

Hai inserito correttamente tutti i dati necessari e a breve riceverai una e-mail con un link da convalidare per inviare i tuoi dati.
Affiliato
Industriale Verona Est Sas
Via XX Settembre, 79 37036 San Martino Buon Albergo (VR)

Il nostro staff


  • Salvatore Cruceli
    Affiliato

  • Valerio Caruso
    Affiliato

  • Martina Forapan
    Coordinatrice

  • Simone Marchiori
    Collaboratore

  • Valerio Triggiani
    Affiliato
Via XX Settembre, 79 37036 San Martino Buon Albergo (VR)
Zona: VERONA EST-SAN MARTINO B.A.-LAVAGNO-COLOGNOLA AI COLLI-CALDIERO-ILLASI-ZEVIO-OPPEANO-PALU'-GREZZANA
Mostra su mappa
Orari: Lun - Ven: 09.00 - 12.30 / 15.00 - 19.30 Sab: 09.00 - 12.30
Affiliato
Industriale Verona Est Sas
Via XX Settembre, 79 37036 San Martino Buon Albergo (VR)

2026 Tecnocasa Franchising S.p.A. - P. IVA 08365160152 - Via Monte Bianco 60/A 20089 Rozzano (MI). Ogni agenzia ha un proprio titolare ed è autonoma. Privacy policy | Policy utilizzo | Cookie policy